Skip To Content

105 East Avenue

Rochester, NY 14604
  • $2,200
  • STATUS: Active
  • ON SITE: 48 Days
  • MLS #: R1658860
UPDATED: 48 min ago
$2,200
  • 0
    BEDS
  • 1.3
    ACRES
  • 0
    BATHS
  • 0
    1/2 BATHS
  • 232,670
    SQFT
  • $0
    $/SQFT
Neighborhood:
Type:
Commercial-Lease
Built:
1900
County:

School Ratings & Info

School District:

Description

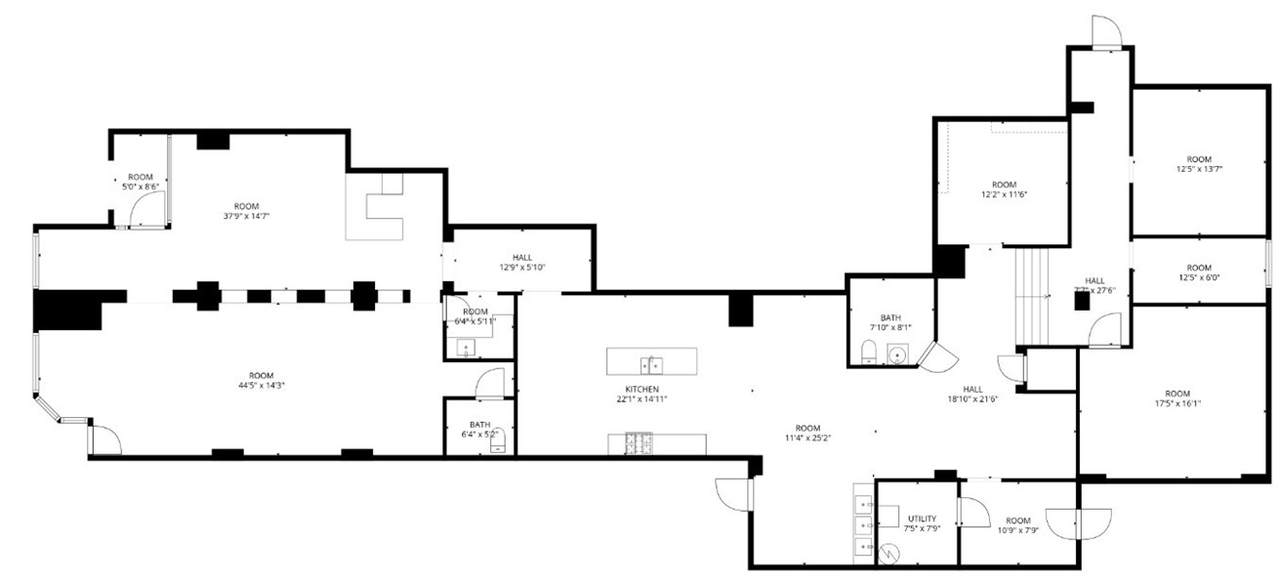
Fantastic business opportunity in the gorgeous "111 on East" building! Located in a beautiful buidling with 247 residential apartments and multiple store fronts & just steps away from the EastMan School of Music & everything that the East Avenue Business District has to offer. Enjoy a double wide store front with dining rooms, service counter, vestibule in front and a kitchen , dishwashing stations/ hookups, offices and multiple coolers and storage rooms in the back. Kitchen equipment on site stays. Easy to show and quick possession available. Make your private appointment to tour today!

©2026 CNYIS, GENRIS, WNYREIS. All rights reserved. IDX information is provided exclusively for consumers' personal, non-commercial use and may not be used for any purpose other than to identify prospective properties consumers may be interested in purchasing. All information deemed reliable but not guaranteed and should be independently verified. All properties are subject to prior sale, change or withdrawal. Neither the listing broker(s) nor BridgeView Real Estate shall be responsible for any typographical errors, misinformation, misprints, and shall be held totally harmless.

The data relating to real estate on this web site comes in part from the Internet Data Exchange (IDX) Program of NYSAMLS’s. Real estate listings held by firms other than BridgeView Real Estate are marked with the IDX logo and detailed information about them includes the Listing Broker’s Firm Name. Data last updated: 2026-03-12T00:14:04.367.
www.bridgeviewny.com/homes/172388849
Print Image

105 East Avenue Rochester, NY 14604

  • Price: $2,200
  • Status: Active
  • On Site: 48 Days
  • Updated: 48 min ago
  • MLS #: R1658860
0
Beds
0
Baths
0
½ Baths
1.3
Acres
232,670
SQFT
$0
$/SQFT
1900
Built
Neighborhood:
East Avenue
County:
Monroe
Area:
Rochester City-261400
School District:
Rochester
Property Description
Fantastic business opportunity in the gorgeous "111 on East" building! Located in a beautiful buidling with 247 residential apartments and multiple store fronts & just steps away from the EastMan School of Music & everything that the East Avenue Business District has to offer. Enjoy a double wide store front with dining rooms, service counter, vestibule in front and a kitchen , dishwashing stations/ hookups, offices and multiple coolers and storage rooms in the back. Kitchen equipment on site stays. Easy to show and quick possession available. Make your private appointment to tour today!
Exterior Features

Construction Materials Brick Masonry Lot Features Rectangular Rectangular Lot Parking Features On Site Other See Remarks Parking Total 0 Roof Flat Membrane Rubber Waterfront YN No

Interior Features

Basement None Basement YN No Fireplace YN No Fireplaces Total 0 Flooring Linoleum Other See Remarks Vinyl Heating Gas Forced Air Heating YN Yes Levels One Living Area 232670

Property Features

Business Type Grocery Documents Available Building Plans Electric 240 Volts220 Volts Inclusions Other - See Remarks Lease Considered YN Yes Listing Terms Other See Remarks Possession Close Of Escrow Possible Use Residential Restaurant Retail Service Business Service Property Condition Resale Property Sub Type Business Sewer Public Sewer Special Listing Conditions Standard Tax Annual Amount 0 Utilities Sewer Connected Water Connected Water Source Public Year Built Details Existing Zoning Commercial Zoning Description Commercial

Greater Rochester Association of Realtors logo Listing information © 2026 CNYIS, GENRIS, WNYREIS. Listing provided by Peter Zizzi of Tru Agent Real Estate : .
©2026 CNYIS, GENRIS, WNYREIS. All rights reserved. IDX information is provided exclusively for consumers' personal, non-commercial use and may not be used for any purpose other than to identify prospective properties consumers may be interested in purchasing. All information deemed reliable but not guaranteed and should be independently verified. All properties are subject to prior sale, change or withdrawal. Neither the listing broker(s) nor BridgeView Real Estate shall be responsible for any typographical errors, misinformation, misprints, and shall be held totally harmless.

The data relating to real estate on this web site comes in part from the Internet Data Exchange (IDX) Program of NYSAMLS’s. Real estate listings held by firms other than BridgeView Real Estate are marked with the IDX logo and detailed information about them includes the Listing Broker’s Firm Name. Data last updated: 2026-03-12T00:14:04.367.
 
https://bt-photos.global.ssl.fastly.net/rochester/1280_boomver_1_R1658860-2.jpg https://bt-photos.global.ssl.fastly.net/rochester/1280_boomver_1_R1658860-2.jpg https://bt-photos.global.ssl.fastly.net/rochester/1280_boomver_1_R1658860-2.jpg
Logo
BridgeView Real Estate
128 Ten Eyck St #2
Watertown NY, 13601